Giovane e luminoso trilocale con balcone e cantina

In vendita
3 locali
Robecco sul Naviglio
123.000 €
Descrizione
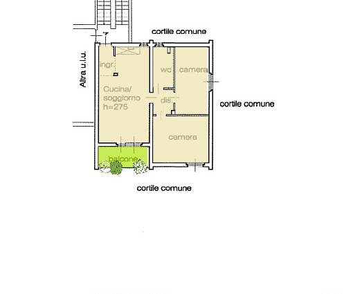
In contesto tranquillo e residenziale, in zona Stadio a Robecco sul Naviglio, proponiamo in vendita appartamento trilocale di 90 mq, situato al primo piano di una palazzina degli anni ’60, senza ascensore, con basse spese condominiali.

Ristrutturato nel 2013, l’appartamento si distingue per uno stile razionale e moderno, perfetto per giovani coppie o famiglie. Gli spazi sono luminosi grazie alla tripla esposizione, mentre il pavimento in gres porcellanato effetto legno uniforme in tutta la casa, coordinato alle porte interne e agli infissi bianchi anch'essi sostituiti, conferisce un tono contemporaneo agli ambienti.

La zona giorno è un open space con:
- Living con cucina a vista sul soggiorno
- Piano snack/pranzo a dividere gli spazi funzionali
- Accesso al balcone dotato di tenda da sole

L'appartamento è così suddiviso: ingresso, soggiorno con cucina a vista, disimpegno, due comode camere da letto e bagno con doccia.
Cantina al piano seminterrato

Dotazioni e comfort:
- Riscaldamento autonomo con caldaia sostituita nel 2013
- Aria condizionata nella zona giorno e predisposizione nella zona notte
- Infissi in PVC doppio vetro
- Tripla esposizione per una luminosità naturale costante

Inoltre, l’immobile dispone di un’esclusiva area verde di circa 50 mq ideale per realizzare un orto, uno spazio gioco o un angolo relax all’aperto.
Possibilità di parcheggiare l'auto all'interno del cortile condominiale.

CARATTERISTICHE PRINCIPALI:
Tipologia: Appartamento trilocale
Comune: Robecco sul Naviglio (MI) – Zona Stadio
Superficie Commerciale: 90 mq
Piano: 1° (senza ascensore)
Stabile: Anni '60
Stato: Ristrutturato nel 2013
Locali: 3 (soggiorno con cucina a vista, 2 camere, 1 bagno)
Bagno: Con doccia
Balcone: Sì, con tenda da sole
Infissi: PVC doppio vetro e zanzariere
Pavimenti: gres effetto legno bianco
Riscaldamento: Autonomo con caldaia nuova (2013)
Aria condizionata: Presente nella zona giorno, predisposizione in zona notte
Esposizione: Tripla
Area verde privata: Sì, ca. 50 mq (uso esclusivo)
Spese condominiali: Basse
Classe energetica: In fase di predisposizione

Se cerchi una casa luminosa, con spazi ben distribuiti, in un quartiere residenziale poco distante dall'Alzaia del Naviglio Grande, chiamaci per fissare una visione.

Prezzo: € 123.000
Una soluzione pronta da vivere, funzionale e accogliente

📞 Contatti:
📱 348 8815788
📧 info@redforhome.it

Caratteristiche principali
Codice:
R3L stadio
Città:
Robecco sul Naviglio
Categoria:
3 locali
Spese condominiali:
200 € / anno
Locali:
3
Camere:
2
Bagni:
1
Mq:
90
Posti auto:
1
Balconi:
1
Mq Balcone:
6
Piano:
1
Anno:
1960
Anno ristrutturazione:
2013
Classe energetica:
G
178 kWh/m²a
Stato Immobile:
Buono
Grado:
Economico
Orientamento:
Nord Est Sud
Lati Liberi:
3
Giardino:
Privato
Arredi:
Possibilità
Tipo Soggiorno:
Soggiorno
Tipo Cucina:
A Vista
Riscaldamento:
Autonomo
Tipo Riscaldam.:
Caldaia
Tipo Impianto:
Radiatori
Fonte Energetica:
Metano
Acqua Calda:
Autonoma
Raffrescamento:
Split
Infissi:
PVC Doppio Vetro
Serramenti:
Buono
Persiana:
Persiana Legno
Pavim. Giorno:
Gres Porcellanato
Pavim. Notte:
Gres Porcellanato
Pavim. Cucina:
Gres Porcellanato
Pavim. Bagno:
Gres Porcellanato
Accesso Disabili:
No
Accesso interno disabili:
Parziale
Isolamento:
Non presente
Isolamento termico:
Nessuno
Isolamento acustico:
Nessuno
Accessori
Aria Condizionata
Cancello Elettrico
Doppi Vetri
Passaggio Automobilistico
Passaggio Pedonale
Porta Blindata
Tende da Sole
Zanzariere
Mappa
Via Trento, 2 - Robecco sul Naviglio (MI)
Video
Cookie preference